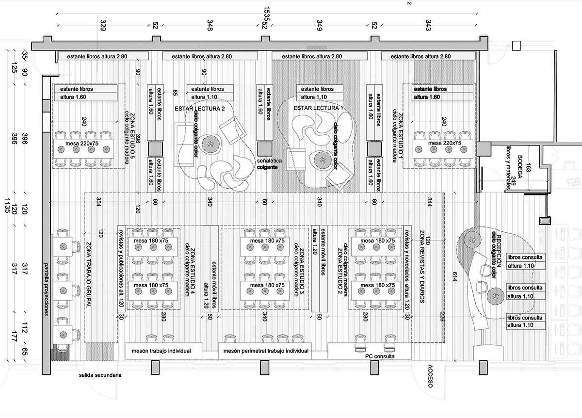
Concurso diseño biblioteca

Colegio Villa María Academy.

Las Condes. RM

Concurso diseño biblioteca - Imagen 1Concurso diseño biblioteca - Imagen 2

Av. Los Conquistadores 2251
Oficina 31
Providencia

SANTIAGO _ CHILE

© 2025 Aguirre Hennig Arquitectos. Todos los derechos reservados