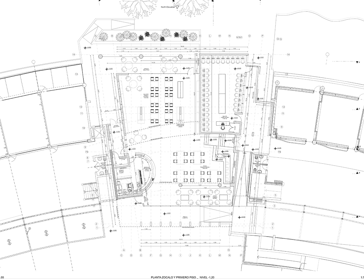
Biblioteca
Colegio Trebulco - Talagante. RM.
Proyecto asociado con Arq. Alvaro Sotomayor











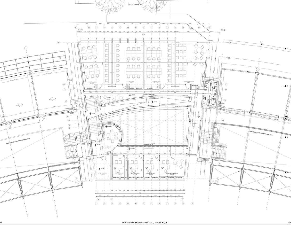
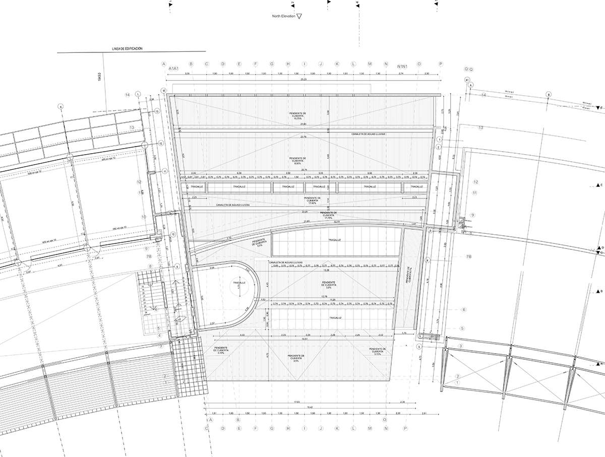
Colegio Trebulco - Talagante. RM.
Proyecto asociado con Arq. Alvaro Sotomayor











Av. Los Conquistadores 2251
Oficina 31
Providencia
SANTIAGO _ CHILE
© 2025 Aguirre Hennig Arquitectos. Todos los derechos reservados