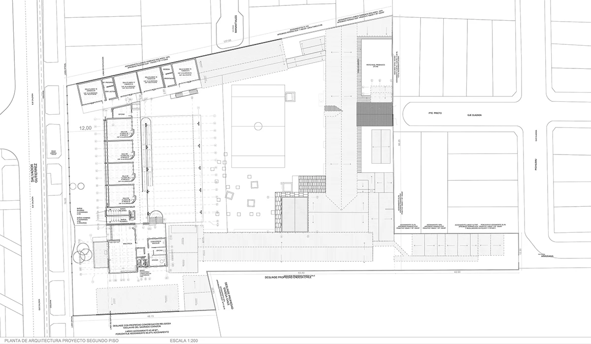
Pabellón aulas y patio cubierto
Colegio San Francisco Javier.
Cerro Navia. RM










Colegio San Francisco Javier.
Cerro Navia. RM










Av. Los Conquistadores 2251
Oficina 31
Providencia
SANTIAGO _ CHILE
© 2025 Aguirre Hennig Arquitectos. Todos los derechos reservados